49 logements et une crèche
St Priest (69)

Programme : 49 logements en accession et locatif social
une crèche de 50 berceaux
Lieu : Saint Priest (69)
MOA : Bouygues Immobilier
Surface : 4.540 m²
Coût : 8.5 M€.HT
Calendrier : concours
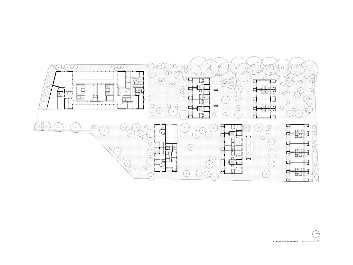
Dernière parcelle à urbaniser dans le secteur de la Rage à Saint Priest, le projet investit la question de la lisière entre tissu urbain et secteur forestier de la Forêt de Feuilly. L’implantation en peigne ménage une politesse vis-à-vis des maisons existantes, permet au paysage de se diffuser généreusement dans les futurs jardins partagés, et replace tous les logements dans un rapport direct avec la forêt. Des formes d’habitats collectifs, intermédiaires, et maisons en bande cohabitent au sein d’une grande copropriété unitaire, discrète et protégée, privilégiant la mutualisation des communs et les déplacements doux dans le site. Elle est portée en proue sur la rue par la future crèche municipale, qui trouve une relation privilégiée au contact de la forêt.
Add paragraph text. Click “Edit Text” to update the font, size and more. To change and reuse text themes, go to Site Styles.







